
Старица — небольшой, но уникальный по своей культурной насыщенности город в Тверской области России. Расположенный на берегу великой реки Волги, он обладает особой атмосферой, бережно сохранившейся сквозь века. С населением около 6 640 человек и площадью всего 7,65 км², Старица сохраняет подлинную аутентичность, которую всё труднее встретить в современной России. Этот город — живой свидетель русской истории, духовных традиций и семейной памяти.
Зарядье: пространство памяти и потенциала


На левом берегу Волги, в районе, известном как Зарядье, расположено здание бывшей швейной фабрики — символ индустриального прошлого советской эпохи. Фабрика, построенная в XX веке, в своё время обеспечивала местное население рабочими местами, производя школьную и рабочую форму. Однако с наступлением 1990-х годов и экономическим кризисом постсоветского периода производство было остановлено, а здание оказалось заброшено.
Несмотря на утрату первоначальной функции, фабричный комплекс сохранился и до сих пор воспринимается жителями как важная часть городской среды. Его архитектурный каркас и выгодное расположение дают уникальную возможность для ревалоризации — преобразования в значимое культурное пространство.
Новая жизнь старого места: музей иконописи
На основании вышесказанного была сформулирована задача — разработать проект пространства, способного стать точкой притяжения как для жителей Старицы, так и для её гостей. Концептуальной основой проекта стала идея создания музея, в котором переплеталась бы история города с историями семей, живущих здесь. Через этот синтез предполагается продемонстрировать, как личные, передаваемые из поколения в поколение воспоминания и традиции формируют общую историческую ткань города.
В рамках идеи переосмысления пространства фабрики возникла концепция создания музея иконописи — учреждения, в котором бы органично соединились история города, духовное наследие и личные семейные хроники. Такой музей может стать не просто выставочным залом, а точкой притяжения для местных жителей, туристов и исследователей, а также площадкой для сохранения и интерпретации многовековых культурных традиций.
Выбор иконописи как основной темы не случаен: этот вид искусства — одна из глубочайших форм духовного самовыражения на Руси. Через икону можно рассказать не только о религиозной жизни региона, но и о мастерстве, вере, преемственности поколений. Иконы — это не просто произведения искусства, это визуальные летописи, хранящие в себе код коллективной памяти народа.
ЗОНИРОВАНИЕ
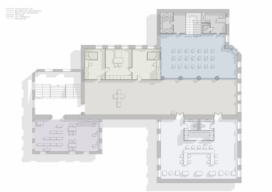
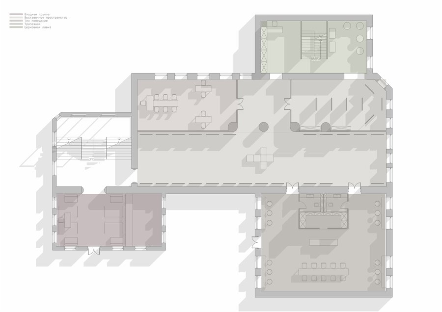
Входная группа — 52 м² Лестничный холл — 96 м² Выставочное пространство — 321 м² Трапезная — 97 м² Читательский зал — 52 м² Лекторий — 89 м² Кабинет персонала — 10 м² Архивы — 12 м² Мастерская резидентов — 48 м² Мастерская общего пользования — 97 м² Санузлы — 15 м² Склады — 14 м² Жилые зоны — 56 м²
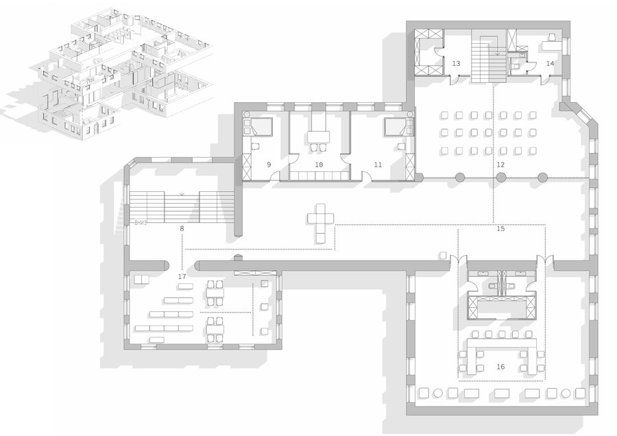
ПЛАНИРОВОЧНОЕ РЕШЕНИЕ
1 — входная группа, 2 — лестничный холл, 3 — мастерская для резидентов, 4 — временная экспозиция, 5 — церковная лавка, 6 — постоянная экспозиция, 7 — трапезная, 8 — лестничный холл, 9 — спальня первого резидента, 10 — общая кухня резидентов, 11 — спальня второго резидента, 12 — лекторий, 13 — архив, 14 — кабинет администрации, 15 — временная экспозиция, 16 — мастерская, 17 — читательский зал


ПОСТОЯННАЯ ЭКСПОЗИЦИЯ


ТРАПЕЗНАЯ




ВРЕМЕННАЯ ЭКСПОЗИЦИЯ




ЛЕКТОРИЙ
ЧИТАТЕЛЬСКИЙ ЗАЛ


МАСТЕРСКАЯ




