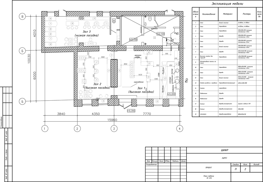
Пышечная общая площадь 130кв.м .Задача повторить дизайн предыдущих пышечных, которые разрабатывал автор.

Исходный размер 2480x1750

Исходный размер 2500x1733

Исходный размер 2480x1750
Исходный размер 2500x1735
Исходный размер 2500x1734
Исходный размер 2480x1750
Исходный размер 2480x1750
Исходный размер 2500x1734
Исходный размер 2500x1734




