
EDEN — проект выставки художницы сьюзанн анкер
чем больше человек проникает в устройство живого, тем отчётливее становится: технологии больше не наблюдают биологию — они становятся её продолжением. мы больше не отделяем созданное от естественного, потому что сами превратились в инструмент собственного эксперимента.
доктрина EDEN
пространственный контур
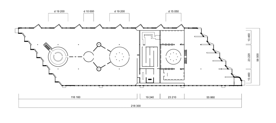
первый этаж
на первом этаже сосредоточены все выставочные пространства проекта. он условно делится на две части: первую, которая выполняет функцию пролога и погружает зрителя в контекст, и вторую, которая является непосредственно интерпретацией райского сада.



второй этаж
второй этаж берет на себя исключительно созидательную функцию — он становится ретроспективой уникального опыта. благодаря системе прогулочных мостиков зритель получает возможность насладиться выставкой свысока и переосмыслить увиденное ранее.



планировочное решение
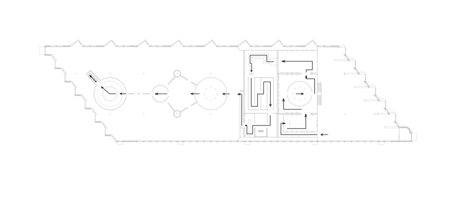
контраст объемов лежит в основе планировочного решения. упомянутая ранее первая часть выставки выполнена чередой относительно замкнутых пространств, которые «сдавливают» зрителя и отсылают к лабораторной структуре.
однако, пройдя первичный лабиринт, зритель попадает во вторую часть — необъятное, кажущееся диким и самобытным пространство, тот самый райский сад. характерная радикальная смена объемов подчеркивает уязвимость человека перед технологиями и прогрессом в целом.
визуальная симуляция
графическая идентификация

логотип выставки сочетает в себе название и эмблему. последняя была получена в результате упрощения теологической диаграммы небесной иерархии. ключевой задачей было сохранение формы окружности, которая цитирует один из основных мотивов в работах художницы — чашу петри.
индивидуальное приглашение
афиши
билеты
мерч
сенсорное поле