
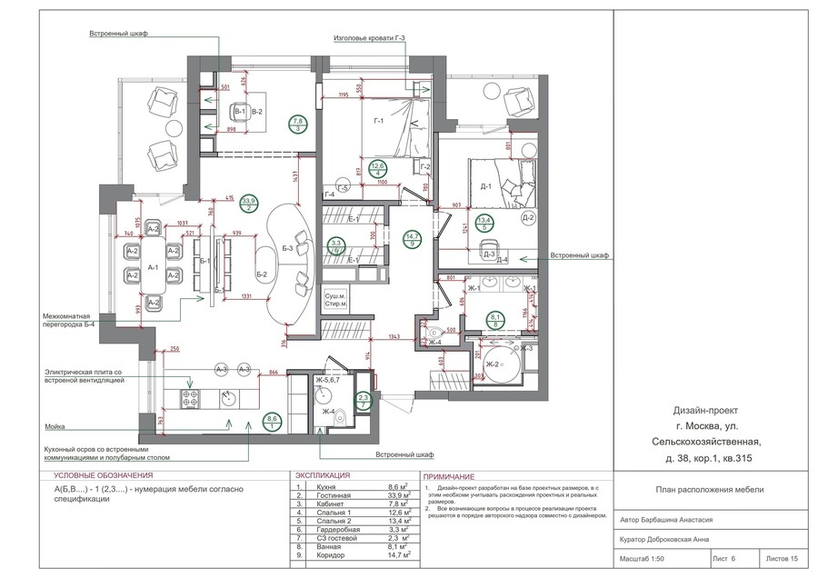
Поставлена задача. Предложить строгий лаконичный дизайн с яркими акцентами в этническом стиле. Продумать нестандартные планировочные решения со скрытыми системами хранения.

Обеденная группа в гостиной


Ванная комната
Гостевой туалет
Спальня заказчицы. Для поддержания уютной и расслабляющей атмосферы используются насыщенные оттенки дерева и бархатного текстиля. Кровать с высоким изголовьем создает ощущение комфорта.
Спальня дочки заказчицы. В пространства использованы яркие акценты и игривые элементы декора.
Кухня с отдельно стоящим островом на котором располагается встроенная варочная панель и мойка.
В кабинете присутствуют элементы с простыми линиями и геометрическими формами с четко выраженной симметрией при помощи этого достигается гармония баланса пространства, располагающая к продуктивной деятельности.
Чистый и упрощенный дизайн письменного стола от дизайнера Бодил Кьерса, практически парит в воздухе. Его выдержанные линии и строгий каркас отсылает нас к входным группам в китайской архитектуре. Яркий, насыщенный алый цвет придает еще больше аутентичности выдержанному стилю.