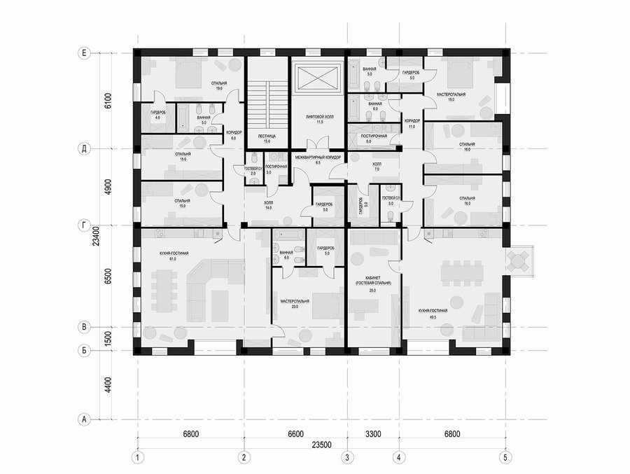
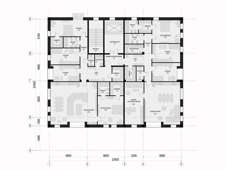
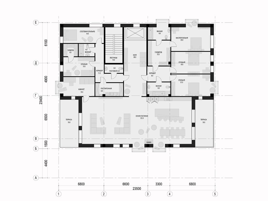
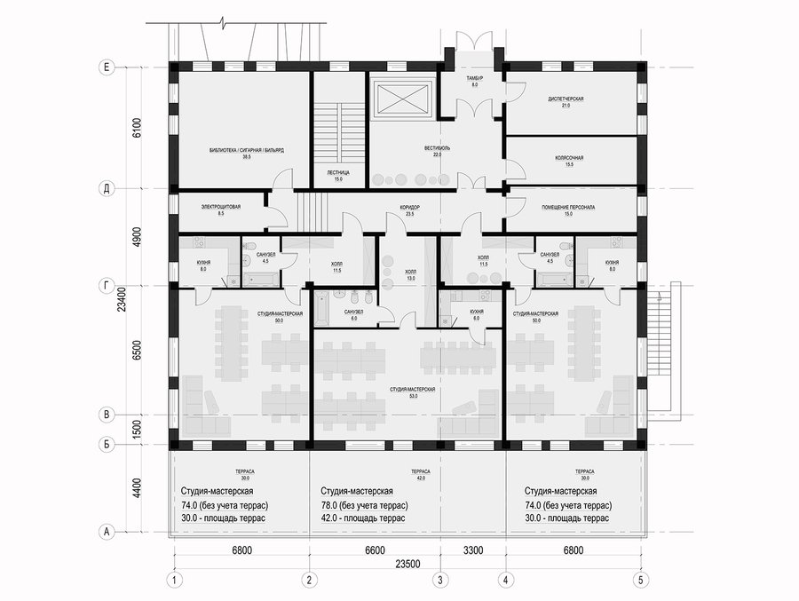
Концепция апарт-отеля в поселке Лисий Нос. Для Заказчика было важно, чтобы здание имело своеобразный силуэт и этом не сильно выделяясь по форме, масштабу и цвету из окружающей застройки. Было выполнено множество вариантов фасадов и планировочных решений. Проект находится в процессе согласования Для меня имел значения исторический контекст и его актуальная интерпретация, поэтому минималистичные эркеры на скатной части медной кровли выполнены с расстекловкой цвета и формы, которая была на террасах дома, ранее располагавшемся на этом участке.
Исходный размер 1565x1140
Исходный размер 1545x1140
Исходный размер 1520x1140
Исходный размер 1520x1140
Исходный размер 1600x1085
Исходный размер 1520x1116




