
Главной задачей проекта являлось создание интерьеров загородного дома в Щелково для непостоянного проживания, интерьеры которого были вдохновлены обычной дачной отделкой, но с нотами современного минимализма и аккуратности. В отделке должны были использоваться преимущественно натуральные материалы, что поддерживало бы задачу интерьера — обеспечивать отдых и разгрузку своих обитателей от нервной жизни в центре каменных джунглей.

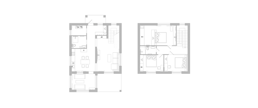
Планировочное решение


Концептуальные коллажи дома


Входная группа


Гостиная

Заказчики проекта являются молодой парой, у которой много близких друзей, в традиции которых включается отдых вместе где-то за чертой города. Пространство должно не только обеспечивать отдых заказчиков, но и вмещать в себя их гостей и родственников.


Гостиная


Мастер спальня


Гостевая комната
Детская комната
У заказчиков запланировано рождение ребенка, поэтому важно было продумать детскую комнату на будущее.


Детская / коридор
В рамках проекта были созданы и согласованы с заказчиком: планировочное решение, визуализации, чертежи, включающие в себя основные планы, развертки и мебельные чертежи. По итогам моей работы был создан полный дизайн проект с полным комплектом чертежей и комплектацией.
Развертки помещений
Основные чертежи 1 этаж
Основные чертежи 2 этаж
Мебельные чертежи