


The purpose of the project, Family with Baby Housing, is to provide a comfortable space for a family with two children, taking into account the characteristics and interests of all residents of the home.

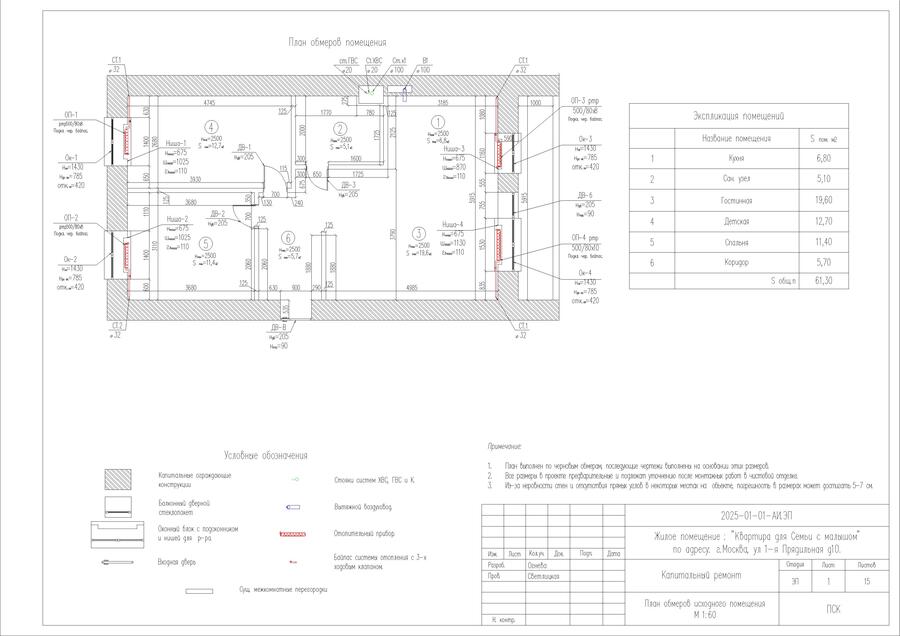
The basic data for the design are as follows: The space-mapping plan is List 1 and the Terms of Reference.
In order to implement the project and improve the ergonomics of the space, we will need a partial remodelling of the apartment.