
Комплексный предпроектный анализ для реновации горнолыжного комплекса
Введение
Данный предпроектный анализ проводится для подробного исследования объекта реновации. В ходе работы будет разработана концепция дизайна интерьера горнолыжного комплекса «Ленинские горки» в городе Ульяновске на месте бывшего одноимённого ресторана
Объект проектирования
За объект проектирования было выбрано здание бывшего ресторана «Ленинские горки», расположенное на территории одноимённого парка. Здание находится в историческом центре города, на склоне, недалеко от побережья Волги. Благодаря рельефу местности территория и здание отлично подходят для создания на этом месте многофункционального горнолыжного комплекса в самом сердце города.
Запрос на создание такого пространства существует среди жителей, так как ранее на данном месте уже функционировал подобный комплекс, но был закрыт около 10 лет назад в связи с банкротством владельца.
Все это время жители Ульяновска с нетерпением ждут повторного открытия горнолыжного комплекса, поскольку он являлся точкой притяжения для активной молодёжи и любителей спорта

Актуальность задачи
В современных городах реновация существующих объектов становится приоритетным направлением развития городских территорий, поскольку позволяет эффективно использовать имеющиеся ресурсы. Заброшенные или недействующие здания оказывают негативное влияние на восприятие городской среды, и их реконструкция способствует улучшению инфраструктуры, повышению туристической привлекательности и создает комфортные условия для досуга горожан
Гипотеза
Гипотеза исследования заключается в том, что на месте бывшего ресторана «Ленинские горки» можно создать современный многофункциональный горнолыжный комплекс, который: - будет выполнять свою основную функцию спортивного центра зимой и оставаться точкой притяжения для любителей активного отдыха летом; - благодаря современным дизайнерским решениям в интерьере сможет выполнять различные функции для комфортного времяпрепровождения гостей; - станет доступным видом досуга как для жителей, так и для гостей города; - сохранит и будет транслировать культурную идентичность города
Разработка такого проекта позволит воссоздать в Ульяновске уникальное пространство, которое послужит городу развитием культуры спорта среди жителей и станет точкой притяжения для гостей региона
Цель и задачи предпроектного анализа
Основная цель анализа — разработать концепцию для проектирования горнолыжного комплекса, адаптированного к современным требованиям безопасности, функциональности и эстетики
Задачи:
- провести анализ объекта реновации и прилегающей территории; - определить функциональные потребности будущего комплекса; - изучить целевую аудиторию и определить востребованные услуги; - разработать концептуальные решения по планировке и дизайну пространства
«Дух места»
География расположения
Город Ульяновск расположен на берегу реки Волги по двум ее берегам. Часть города на левом берегу Волги является низменным Заволжьем, а правый берег представляет собой Приволжскую возвышенность. На ней и расположился исторический центр города
Также в этой части Волги расположено Куйбышевское водохранилище, благодаря чему река в данной местности кажется особенно широкой и бескрайней
Ульяновск на карте 1949 года
Выбранный объект расположен на правом берегу Волги, в районе, который исторически входил в центральную часть Симбирска. Эта территория начала активно застраиваться ещё в XIX веке благодаря удобному расположению на возвышенности и близости к волжскому склону.
Рядом находятся парк, созданный в середине XX века, городской пляж, который долгое время использовался как основная зона отдыха, а также исторические объекты, связанные с семьёй Ульяновых. В непосредственной близости расположены здания и мемориальные комплексы, которые сформировались в центре города в советский период и относятся к ключевым объектам культурного наследия региона
Расположение парка «Ленинские горки» в городе, снимок 1972 года
Участок на котором расположен парк «Ленинские горки» был облагорожен лишь в нашем столетии. Сам парк основан в 2007 году, ранее на этом месте были обычные холмы и местами частные участки. На снимке Ульяновска 1972 года, видно что территория парка пустует, и лишь соседняя территория «Парка дружбы народов» начинает приобретать свой облагороженный вид. «Парк дружбы народов» был основан в 1969 году
Рельеф и особенности ландшафта
Так как объект расположен на правом берегу Волги, на Приволжской возвышенности — рельеф местности характеризуется значительным перепадом высот и холмистым ландшафтом, покрытым лесным массивом.
Карта высотности
На карте высотности видно, что основной перепад высоты приходится именно на территорию парка «Ленинские горки» и составляет порядка 100 м


Фото ландшафта


Фото ландшафта
Карта почв Ульяновска
Почвы — чернозем с примесью глинистых и суглинестых щебнистых пород
Грунт может быть местами неустойчивым, поэтому для застройки в таких районах больше всего подходят свайные конструкции. Важно учитывать возможные просадки грунта при повышенной влажности
Гидрография и климат
Город расположен в центральной части Среднего Поволжья и ограничен двумя реками — Волгой и Свиягой
Такое географическое положение отражается на температурном режиме, количестве осадков и направлении ветров. Климат формируется под влиянием близости рек. Зимой морозы слегка смягчаются за счёт тепла водной поверхности, но в низине между реками часто образуются туманы, а повышенная влажность усиливает ощущение холода. Локальные ветры вдоль рек могут быть заметны, но сильные порывы редки. Летом жара немного смягчается благодаря испарению с рек, влажность воздуха выше, особенно в пойме, что создаёт частые утренние туманы и росы. Вдоль рек могут возникать локальные ветры, приносящие лёгкую прохладу
Расположение города относительно рек
Климат Ульяновской области относится к умеренно континентальному типу: зимы здесь довольно холодные, а лето тёплое. Он формируется под влиянием континентальных воздушных масс умеренных широт. Для региона характерна короткая и засушливая весна. Осенью обычно тепло, а устойчивый снежный покров появляется во второй половине ноября. Самым холодным месяцем считается январь. Зима снежная и нередко сопровождается резкими колебаниями температуры из-за смены циклонов Расположение на Приволжской возвышенности способствует тому, что здесь довольно часто дуют ветры разных направлений. Согласно розе ветров, преобладают западные (35%), южные (25%) и северные (17%) ветры со среднегодовой скоростью около 3,9 м/с.
Климат района характеризуется ярко выраженной сезонностью. Зимой здесь устанавливаются устойчивые морозы, весной происходит постепенное потепление, которое переходит в тёплое лето с наиболее комфортной температурой. Осенью наблюдается плавное снижение температуры и переход к холодному периоду.
Осадки распределены относительно равномерно в течение года: зимой их немного, а в тёплое время года их становится больше, достигая максимума летом
Средние показатели температуры и осадков
На протяжении года в регионе отмечается чередование солнечных, облачных и пасмурных дней, при этом преобладает переменная облачность. Зимой наблюдается больше пасмурных дней, особенно в декабре и январе. Весной и летом количество солнечных дней возрастает, хотя облачность всё равно остаётся доминирующей. Осенью снова увеличивается доля пасмурной погоды.
Дни с осадками распределены относительно равномерно: их число лишь незначительно меняется от месяца к месяцу, что указывает на стабильный климатический режим без ярко выраженных периодов засухи или затяжных дождей
Средние показатели количества солнечных дней
Здание ориентировано на восток, благодаря чему в утренние часы оно получает максимальное количество естественного света. Это особенно заметно в весенне-летний период, когда солнечных дней становится больше: территория перед зданием выглядит более светлой, открытой и визуально тёплой, что создаёт комфортное настроение для посетителей с самого начала дня.
Зимой, несмотря на преобладание пасмурной погоды, утреннее освещение также играет важную роль. Восточное солнце помогает компенсировать короткий световой день, улучшает видимость на прилегающей территории и делает пространство менее мрачным. В итоге такая ориентация положительно влияет на атмосферу места, формируя ощущение естественной освещённости и приветливой среды в любое время года
Средние показатели по скорости ветра
В течение года в регионе преобладают умеренные ветровые условия. Основная часть дней характеризуется скоростью ветра от слабой до средней, преимущественно в диапазоне от 10 до 30 км/ч. Наиболее спокойные ветровые периоды наблюдаются весной и в начале лета, когда возрастает количество дней со слабым ветром.
Более сильные порывы, достигающие 30–40 км/ч, встречаются реже, но фиксируются практически во все сезоны. Дни с очень сильным ветром являются единичными и наблюдаются преимущественно в зимний период. В целом режим ветра стабильный и не имеет резких сезонных колебаний
Роза ветров
Склон направлен с запада на восток, то есть преобладающие западные и юго-западные ветры будут дуть вдоль линии склона — сверху вниз. Это создаёт несколько заметных эффектов:
- Зимой ветер будет усиливать охлаждение на верхних точках и может частично сдувать снег с верхней части склона, но при этом на нижних участках условия будут более стабильными. - Летом такие ветры обеспечат постоянное естественное проветривание вдоль склона, уменьшая ощущение жары и делая пространство более комфортным. - С восточной стороны, то есть в нижней части склона, будет более спокойно и менее ветрено
В целом графики показывают стабильные климатические условия: зима более пасмурная, весна и лето — заметно солнечнее, а количество осадков и скорость ветра распределены относительно равномерно в течение года. При этом преобладают умеренные ветровые скорости, без резких экстремумов. Такие показатели создают предсказуемую и комфортную среду для работы горнолыжного комплекса и отдыха посетителей
Флора прилежащей территории. Тактильные ощущения и их влияние на восприятие места
Рядом с комплексом «Ленинские горки» находится Парк дружбы народов — спокойная зелёная территория с лиственными деревьями и небольшими спортивными зонами. В тёплое время года здесь ощущаются прохлада тени, мягкость почвы под ногами и шероховатость деревянных или грунтовых покрытий. Сквозь кроны деревьев местами просматриваются блески Волги, что создаёт ощущение открытого пространства
Прогулочные дорожки из природных материалов постепенно выводят к центральной части города. По пути чувствуется смена поверхности под ногами — от мягкой земли в парке до более твёрдых городских покрытий. В районе смотровой площадки всегда присутствует поток свежего ветра с реки, который даёт ощущение прохлады и открытости
К комплексу ведёт крутая лестница, расположенная в тени деревьев. При движении по ней чувствуется перепад температуры: прохлада лесного участка сменяется более сухим и тёплым воздухом открытого склона. Выйдя к комплексу, человек сразу ощущает увеличение пространства, более яркий свет и лёгкий ветер со стороны Волги
Природные материалы и ландшафт создают комфортную и спокойную атмосферу вокруг комплекса. Тень деревьев и мягкие покрытия дают ощущение прохлады и защищённости, а ветер с Волги привносит свежесть и открытость пространства. Контраст между тенистой зоной и солнечным склоном делает место более выразительным и живым
Особенности застройки района и его влияние на будущую архитектуру комплекса
План центра Ульяновска 1982 года
Во второй половине XX века историческое центр Ульяновска подвергся масштабной перестройке, в результате которой в городе появилось множество новых архитектурных объектов. Сегодня центр города сочетает в себе старинные дореволюционные здания и сравнительно современную советскую застройку 1960–1970-х годов, создавая выразительный контраст эпох.
Этот контраст особенно ярко подчёркивает, что Ульяновск хранит в себе глубокий исторический пласт, повлиявший на судьбу всей страны. Старинные, бережно сохранённые здания напоминают о происхождении многих значимых исторических личностей и деятелей, а советская архитектура отражает эпоху становления СССР. Ведь именно здесь родился Владимир Ленин — человек, сыгравший ключевую роль в формировании советского государства
Исторические события. Функция места в истории
Всё началось в 1648 году, когда здесь был основан Симбирский острог — крепость, призванная охранять южные границы Московского государства от кочевников
Ульяновск — город с богатым историческим наследием, судьба которого тесно связана с Волгой и его стратегическим положением на её берегах.
В XVIII веке Симбирск постепенно превратился в значимый административный и торговый центр. Город начал активно развиваться: возводились каменные дома, церкви и монастыри, формировалась инфраструктура, открывались новые культурные возможности
Симбирский кремль. Снесен в последней четверти XVIII века. Фрагмент гравюры М. И. Махаева
В XIX веке город приобрёл особое историческое значение: в 1870 году здесь родился Владимир Ульянов, будущий Ленин — лидер Октябрьской революции и основатель Советского государства. В 1924 году Симбирск получил новое название — Ульяновск, став областным центром и символом эпохи, связанной с именем Ленина
В самом центре современного Ульяновска находится дом, в котором родился и провёл детство Владимир Ленин. Это исторически значимое место стало сердцем города, вокруг которого постепенно сформировалась центральная зона
Архитектурная и социальная структура этого района создавалась таким образом, чтобы подчеркнуть значимость наследия великого революционера. Сегодня вокруг дома Ленина расположены важнейшие административные и культурные объекты города. Здесь находятся здания администрации и Дома правительства, где решаются ключевые вопросы региона, университет, готовящий новое поколение специалистов, главный концертный зал. В непосредственной близости расположен гостиничный комплекс, а также гимназия имени Ленина, где школьники учатся рядом с историческим памятником.
Дом в котором родился и вырос В. И. Ленин
Эта композиция создаёт уникальное ощущение преемственности: старинный дом, символ исторической памяти, органично сочетается с современными административными и культурными зданиями. Прогуливаясь по центральным улицам, можно почувствовать, как прошлое города гармонично переплетается с настоящим, и понять, насколько значимым стало наследие Ленина для формирования облика Ульяновска
В советское время Ульяновск переживал бурное развитие как промышленный и культурный центр. Здесь строились заводы, в том числе авиационные и автомобильные, развивались образовательные и научные учреждения, что закрепило за городом статус одного из ключевых центров региона
Прибрежная зона Ульяновска развивалась постепенно и сегодня включает в себя набережную, пляжи, порт и мосты через Волгу
Речной порт г. Ульяновск
Речной порт города был открыт в 1965 году и получил неофициальное название «порт пяти морей», поскольку обеспечивал водное сообщение с различными морскими бассейнами страны. В послевоенные годы набережная и порт стали важной частью генерального плана города, связанного с развитием Куйбышевского гидроузла. Ключевым инженерным объектом является Президентский мост, соединяющий берега Волги. Его строительство началось в 1986 году и завершилось лишь спустя десятилетия, включая подъездные пути общей протяжённостью около 13 км. В 2021 году была открыта левобережная развязка с автомобильными, пешеходными и велосипедными маршрутами. Набережная постепенно благоустраивается: укрепляются склоны, прокладываются прогулочные дорожки, устанавливается ливневая канализация. Пока не все участки прибрежной территории интегрированы в городскую среду — не хватает удобных спусков к воде и единого ландшафтного оформления
Речная инфраструктура всегда имела стратегическое и экономическое значение для Ульяновска. С момента основания города как Симбирского острога в 1648 году Волга служила важнейшим транспортным и оборонительным путём, связывавшим Поволжье с другими регионами России. В XIX–XX веках развитие порта, строительство набережной и мостов способствовали укреплению торговых связей, росту промышленности и формированию городской инфраструктуры. Река также играла ключевую роль в культурной и общественной жизни города, создавая пространство для отдыха, прогулок и проведения общественных мероприятий. Таким образом, речная инфраструктура стала неотъемлемой частью исторического и экономического развития Ульяновска
История постройки здания. Бывший функционал и изменения
Организация была создана 6 мая 2005 года, однако как полноценный объект комплекс «Ленинские горки» начал функционировать только в 2008 году. Уже через два года предприятие оказалось в тяжёлом финансовом положении — в 2010 году была предпринята первая попытка признать его банкротом
По подсчётам тогдашнего конкурсного управляющего, ежемесячные поступления составляли около 240 тысяч рублей, а прибыль — примерно 100 тысяч. При этом сумма задолженности достигала 170 миллионов рублей, что и стало причиной отказа суда во введении внешнего управления
Серьёзный удар по дальнейшему существованию проекта нанёс оползень 2017 года, который деформировал склон и фактически поставил точку в работе комплекса. Через несколько лет, в 2020 году, на этой территории Федерация горнолыжного спорта Ульяновской области создала тренировочные и обучающие спуски под названием «Венец и я»
Позднее, в октябре 2021 года, состоялись переговоры с губернатором, в ходе которых обсуждались варианты возрождения проекта и благоустройства территории вокруг склона. Среди предложений были восстановление лестничного подъёма, укрепление склонов и разработка новой концепции развития. Отдельным пунктом рассматривалось проведение масштабных противооползневых мероприятий
«Дух времени»
Объект и прилегающие территории
Комплекс расположен недалеко от Императорского моста, в зоне, где проходит один из основных городских транспортных потоков
В пешей доступности находятся городской пляж, Парк дружбы народов, центральная площадь и крупные культурные и административные объекты. Территория связана с основными городскими маршрутами и находится в историческом центре Ульяновска
Объект на карте Ульяновска
На данный момент времени, исходя из кадастрового плана, участок ресторана «Ленинские горки» достаточно маленький и ограничивается территорией вокруг самого здания. Однако, когда на этом месте был расположен горнолыжный комплекс, в границах его участка был весь парк «Ленинские горки» и прилежащие территории (см. карту)
Кадастровый план города
Здание ресторана площадью 2 012 м² находится на участке 13 556 м², а территория парка «Ленинские горки» занимает 48 040 м². Также рядом расположены небольшие участки (общей площадью 16 577 м²) на которых находится бывшее оборудование для подвесной канатной дороги
Неиспользуемые постройки для обслуживания подъемников
Неиспользуемые постройки для обслуживания подъемников
Неиспользуемые постройки для обслуживания подъемников
Старые конструкции подъемника находятся в крайне непригодном состоянии и требуют полной замены и реконструкции. Некоторые элементы уже покосились, что значительно повышает риск аварий и делает дальнейшее использование невозможным
Фотофиксация старых конструкций подъемника
В здании бывшего комплекса в настоящее время размещается ресторан с банкетными залами. Здание имеет два этажа и цокольный этаж, а также оборудованную открытую веранду. На территории ресторана организована парковка на 100 автомобилей


Фото здания нынешнего ресторана «Ленинские горки»


Фото здания нынешнего ресторана «Ленинские горки»
В комплексе два зала на 350 и 60 человек, летняя веранда на 200 мест, территории с зелёными насаждениями для мероприятий на свежем воздухе. Ресторан предоставляет полный набор услуг: оформление залов, организацию питания, развлечений и фотосессий


Использование внутренних пространств в настоящее время


Использование веранды в настоящее время
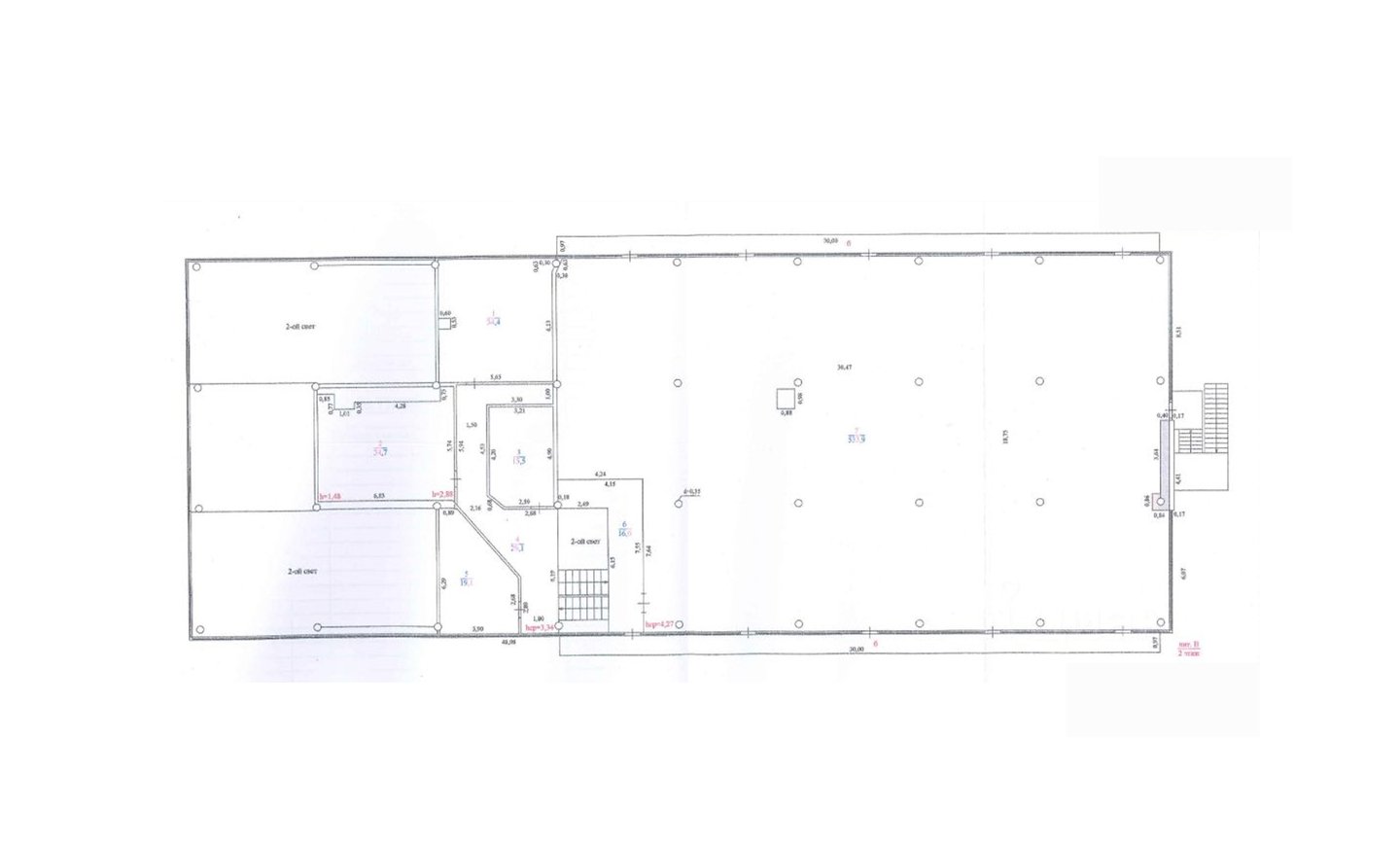
Планировки здания (1 этаж, 2 этаж, цокольный этаж)
Транспортная доступность и градообразующие еденицы
К комплексу «Ленинские Горки» легко добраться как на собственном транспорте, так и на общественном. В шаговой доступности расположена автобусная остановка «Городской пляж», обеспечивающая удобное сообщение с различными районами города. Кроме того, до остановок общественного транспорта в центре города можно дойти за 10 минут
План доступности общественного транспорта
У центральной площади, находятся остановки трамвая и автобусов «Венец».Для тех, кто приехал издалека и хочет выбрать необычный маршрут, возможен даже вариант путешествия на пароме с высадкой у речного вокзала
В центре Ульяновска сосредоточены ключевые объекты городской инфраструктуры: корпуса университетов, гимназии, театр, здание городской администрации, крупные гостиницы и множество других важных учреждений, формирующих административное и культурное ядро города
Расположение градообразующих едениц
Исходя из того, что в центре города сосредоточены корпуса университетов, гимназии и другие учебные заведения, а также важные административные и культурные объекты, размещение спортивного комплекса в этой части города выглядит особенно актуальным. Центр обладает высокой доступностью для жителей всех основных районов и градообразующих единиц, что обеспечивает удобный поток посетителей. Горнолыжный комплекс в таком месте был бы особенно востребован среди молодёжи — студентов и школьников, которые ежедневно находятся в центральной зоне и активно нуждаются в современных спортивных и досуговых пространствах
Рядом с комплексом располагаются парки и зелёные прогулочные зоны, которые активно используются горожанами и спортсменами для пробежек, тренировок и отдыха
Схема парковых и прогулочных зон
Это подтверждает устойчивый спрос на спортивную инфраструктуру в данном районе: люди уже привыкли заниматься здесь активными видами деятельности, а появление современного спортивного комплекса органично дополнит существующую среду и удовлетворит растущие потребности жителей
Ландшафтные особенности местности и влияние на выбор материалов при застройке
Как было сказано в прошлом разделе, почвы в местности где расположен комплекс — это чернозем с примесью глинистых и суглинестых щебнистых пород. Ранее на этой территории уже случались оползни, поэтому при реновации здания надо учитывать эти особенности и ставить дополнительные конструкции для устойчивости
Само здание находится на высоте около 75 метров, склон небольшой и рисков деформации почвы мало. А вот у территории парка и его склонов перепад почти 100 метров, и для проведения работ по благоустройству и установке новых горнолыжных требуется укрепление склона
Перед созданием горнолыжного комплекса необходимо провести комплекс работ по стабилизации грунта
Обычно это включает в себя инженерно-геологические изыскания, расчёт несущей способности склонов и моделирование возможных деформаций. Укрепление выполняется путём устройства глубинных и поверхностных дренажных систем для снижения уровня грунтовых вод, установки свайных и анкерных креплений, возведения подпорных сооружений, создания террас и контрбанкетов, а также проведения биотехнических мероприятий по закреплению поверхности корневой системой растений. Только после завершения этих работ можно обеспечить безопасные условия для строительства горнолыжной инфраструктуры, включая трассы, подъёмники и сервисные зоны
Укрепление склонов
Поверх укрепляющего слоя необходимо положить новый слой грунта и растительности для восстановления естественного вида ландшафта
Если говорить более конкретно, то для укрепления склона необходимы: Георешетки (плоские и объемные) — распределяют нагрузку, предотвращают сползание грунта. Геотекстиль — выполняет фильтрующую и разделительную функции. Геомембраны — используются для гидроизоляции, предотвращают размывание. Геоматы и биоматы — защищают поверхность от эрозии, способствуют восстановлению растительности
При возведении зданий на склоновых и прибрежных участках необходимо использовать специальные подпорные конструкции, которые предотвращают смещение грунта и позволяют формировать устойчивые террасы под застройку. В качестве опорных элементов часто используются монолитные железобетонные стены, обладающие высокой несущей способностью и долговечностью. В прибрежной зоне эффективны габионы — сетчатые конструкции, заполненные камнем: они пропускают воду, снижают гидростатическое давление и стабилизируют откос. На сложном рельефе нередко применяют сборные железобетонные элементы, что облегчает транспортировку и ускоряет монтаж.
Кроме того, в условиях чернозёмных, глинистых и суглинистых почв, характерных для берегов Волги, требуется использование свайного фундамента. Такие грунты подвержены просадке, сезонному пучению и снижению несущей способности при увлажнении, поэтому свайные конструкции (стальные или железобетонные) позволяют передавать нагрузку на более прочные и стабильные слои, обеспечивая устойчивость будущего здания и предотвращая деформацию склона
Пример свайной конструкции на склоне
Переходя к материалам облицовки для фасада, стоит отметить что здание находится в прибрежной полосе Волги, поэтому материалы должны быть устойчивыми к воздействию сильного ветра и влаги
Современный облик комплекса включает в себя деревянные элементы, которые органично вписываются в окружающий ландшафт. При обновлении здания и сохранении отдельных фрагментов фасада целесообразно использовать породы древесины, устойчивые к воздействию влаги. Наиболее надёжными в данном случае считаются хвойные породы, которые отличаются природной влагостойкостью благодаря особенностям своей структуры и высокому содержанию смол
- Сосна обыкновенная — прочная, смолистая древесина, хорошо противостоит гниению. - Европейская ель — обладает водоотталкивающими свойствами, хотя из-за мягкости требует дополнительной обработки для эксплуатации во влажной среде. - Лиственница сибирская — одна из самых стойких пород; она практически не подвержена разрушению под воздействием воды и широко используется в гидротехнических сооружениях. - Сибирский кедр — отличается высокой долговечностью
Использование таких материалов позволит сохранить естественный вид фасада и обеспечит долговечность обновлённого комплекса в условиях влажного климата и близости к водоёму.
При разработке концепции внешнего вида фасада важно учитывать наличие бетонных элементов. С инженерной точки зрения они повышают общую прочность и надёжность конструкции, а с визуальной — способны подчеркнуть монументальность здания и создать связь с архитектурными традициями 1960–1970-х годов, когда подобные материалы активно использовались и формировали характерный стиль города
Здание концертного зала, находящееся недалеко от комплекса
Анализ запроса на сохранение исторической идентичности архитектуры в городе на данный момент
В Ульяновске существует выраженный запрос на сохранение архитектурной самобытности города, что проявляется как на уровне государственных программ, так и в деятельности общественных организаций
В 2018 году была утверждена концепция развития исторического центра, предусматривающая охрану более 300 объектов культурного наследия и регулирование строительства в охранных зонах. В последние годы под охрану попали дополнительные исторические здания, для которых установлены специальные градостроительные правила
Пример исторического здания в Ульяновске. Дом-музей Гончарова. Находится в пределах 10 минут ходьбы от комплекса
Эксперты подчеркивают важность сохранения исторических ценностей при градостроительстве, сочетая их с современными архитектурными решениями. Все это свидетельствует о том, что жители и власти города стремятся сохранить уникальный облик Ульяновска, объединяя культурное наследие с современным развитием
Гостиница «Венец»
В июне 2022 года в Ульяновске проходило собрание архитекторов, обсуждалось сохранение исторически важных объектов в городе
«Региональное отделение Союза архитекторов и Музей-заповедник „Родина В. И. Ленина“ организовали трехдневный форум, посвященный сохранению и изучению архитектурного наследия Ульяновской области. Он стартовал в четверг. По задумке авторов, мероприятие станет площадкой для диалога и взаимодействия с властью, музейщиками и общественниками. Эксперты отмечают, что зачастую собственники исторических зданий мало уделяют внимания своим объектам, и назрели изменения в профильных законах.»
Выявление актуальных функций здания, соответствующих запросам социума и инфраструктуре современного Ульяновска
После закрытия комплекса «Ленинские горки» жители устраивали пикеты с требованием открыть его снова. Многие юные спортсмены лишились возможности тренироваться, а комплекс стал недоступен для всех, кто хотел заниматься горнолыжным спортом. Благодаря удачному расположению сюда могли легко добраться школьники из всех районов города: всего в десяти минутах ходьбы находятся гимназия имени Ленина и университет, а транспортная доступность оставалась высокой. Закрытие комплекса лишило молодых людей и их родителей возможности заниматься любимым видом спорта, и одна из уникальных рекреационных точек города просто исчезла с карты Ульяновска
Протесты против закрытия горнолыжного комплекса
В Ульяновской области появилась инициативная группа «За возрождение Ленинских горок», в состав которой вошли лыжники, сноубордисты и родители детей, занимающихся в комплексе. Они выразили недовольство закрытием горнолыжного комплекса «Ленинские горки» и обеспокоенность отсутствием реакции со стороны региональных и городских властей на судьбу этого значимого для Ульяновска спортивно-развлекательного объекта. Участники группы направили губернатору Сергею Морозову открытое обращение с просьбой не допустить ликвидации комплекса и выразили надежду на поддержку его восстановления
Восстановление горнолыжного комплекса именно в его изначальной спортивно-рекреационной функции является крайне актуальным. Это обусловлено как уникальными природно-рельефными особенностями склона и выгодным расположением комплекса в центре города, так и реальной потребностью жителей, особенно молодёжи, в доступных местах для занятий спортом и активного отдыха
Целевая аудитория
Целевая аудитория горнолыжного и спортивного комплекса — это семьи с детьми, студенты и школьники, молодежь, любители активного отдыха, спортсмены-профессионалы и тренирующиеся в спортивных школах. Также сюда входят жители района, которые используют спорт как часть ежедневного образа жизни, и гости города, ищущие доступные формы активного досуга
Дети и подростки (7–17 лет)
Это учащиеся школ, лицеев и гимназий, а также воспитанники спортивных школ.
Основные потребности:
- обучение катанию на лыжах и сноуборде; - безопасные тренировочные трассы; - спортивные секции и групповые занятия; - места для активного времяпрепровождения летом
Студенты и молодёжь (18–25 лет)
Студенты университетов и колледжей, молодые активные люди
Основные потребности:
- современные зоны для активного отдыха и спорта, где можно провести время после учёбы; - доступные по цене услуги проката и обучения; - летом — беговые и веломаршруты, тренировки на открытом воздухе
Семьи с детьми
Родители, ищущие совместный отдых и занятия для детей
Основные потребности:
- безопасные детские зоны и семейные программы; - возможность обучать детей зимним видам спорта; - комфортная инфраструктура (кафе, раздевалки, тёплые зоны отдыха); - летом — места для прогулок, семейных занятий
Любители активного отдыха (взрослые 25–55 лет)
Люди, которые выбирают спорт как способ поддержания формы
Основные потребности:
- хорошие трассы и качественный инвентарь; - утренние и вечерние тренировки; - пространство для круглый год: лыжи зимой, велоспорт и бег летом
Профессиональные спортсмены и тренеры
Представители спортивных школ, сборных, тренирующиеся на постоянной основе
Основные потребности:
- профессиональные и хорошо подготовленные трассы; - тренировочные зоны с определёнными параметрами и безопасностью; - возможность проведения соревнований и сборов; - места для разминки и физподготовки в тёплое время года
Жители близлежащих районов
Люди всех возрастов, которые хотят заниматься спортом рядом с домом
Основные потребности:
- доступность комплекса пешком или на общественном транспорте; - регулярный досуг: прогулки, пробежки, занятия на свежем воздухе; - разнообразие спортивных активностей круглый год
Гости города и туристы
Люди, приезжающие в Ульяновск по делам или отдыхать
Основные потребности:
- привлекательная инфраструктура, позволяющая провести свободное время; - аренда оборудования — без необходимости в своём снаряжении; - сезонные активности, которые делают комплекс туристической точкой
Целевая аудитория комплекса очень широкая, от детей до взрослых профессионалов. Зимой они нуждаются в трассах для горных лыж и сноуборда, прокате и обучении, а летом — в местах для спорта, прогулок, тренировок и семейного отдыха. Такая многообразная аудитория обеспечивает высокую загрузку комплекса круглый год
Мировой опыт
Горнолыжный спуск в черте города
Одним из примеров горнолыжного спуска, расположенного в самом сердце города, является Hammarbybacken в Стокгольме, Швеция. Этот комплекс устроен на естественном холме и предлагает жителям города полноценные зимние трассы с подъёмниками, лыжной школой, прокатом оборудования, а также зоны отдыха и летние активности, что делает его универсальным спортивно‑рекреационным объектом в городской среде
Расположение комплекса относительно карты Стокгольма
Высота холма от нижней точки до вершины — около 85 м перепада высоты
Hammarbybacken — это городской склон на естественной возвышенности в Стокгольме, оборудованный несколькими трассами и подъёмниками для катания зимой, с инфраструктурой для лыжной школы и проката оборудования. В 2022 году комплекс был дополнен участком «SummerSki» со специальным покрытием, позволяющим кататься даже летом на «сухом» склоне, что делает Hammarbybacken универсальной зоной для зимнего и круглогодичного досуга
Покрытие для летнего катания на лыжах
Помимо лыжных трасс, в Hammarbybacken есть различные развлечения и активности: горный карт, тюбинг и верёвочный парк, а также прогулочные и беговые маршруты, доступные круглый год, и специальные зоны для проведения спортивных и развлекательных мероприятий, что превращает комплекс в полноценную многофункциональную городскую зону отдыха
Ление активности в комплексе Hammarbybacken
Что касается здания в горнолыжном комплексе Hammarbybacken, оно имеет довольно компактные размеры и не является ключевым элементом комплекса. Основное внимание здесь уделено самому склону и горнолыжной инфраструктуре — катанию, подъёмникам, трассам и видам на город. Здание шале/база проката выполняет вспомогательную роль: здесь располагаются прокат оборудования, кафе и сервисы для посетителей. По сути, оно служит поддержкой для активности на склоне, а не является центром архитектурного или визуального акцента
Здание горнолыжного комплекса
Интерьеры и архитектура зданий горнолыжных комплексов
Copperhill Mountain Lodge
Copperhill Mountain Lodge — это современный горнолыжный отель, расположенный на вершине горы в шведском курорте Аре. Архитектура здания тщательно продумана так, чтобы гармонировать с окружающим пейзажем: фасады из дерева и стекла создают эффект слияния с природой, а большие панорамные окна открывают виды на горные склоны и леса


Интерьеры отеля сочетают тёплое дерево, натуральный камень и современные элементы мебели. Внутренние пространства включают лобби, уютные лаунж-зоны, рестораны и бары, где гости могут отдохнуть после катания. Особое внимание уделено рекреационной части: здесь есть spa-центр, бассейн и зоны релаксации


Интерьер Copperhill Mountain Lodge также создает ощущение горного размаха благодаря высоким потолкам и открытым пространствам. Панорамные окна усиливают эффект масштаба, обеспечивая визуальную связь с окружающими склонами и лесом
Copperhill Mountain Lodge спроектирован с упором на функциональность интерьеров и удобство гостей. Лобби и ресепшн имеют высокие потолки и панорамные окна для естественного освещения
Горнолыжный отель в Альпах Le Coucou Méribel
Le Coucou Méribel — это горнолыжный отель, расположенный прямо у трасс французского курорта Мерибель. Он сочетает стильный дизайнерский интерьер с функциональностью: просторные номера, лаунж-зоны, рестораны, SPA и бассейн, а также специально оборудованная лыжная комната для хранения и подготовки снаряжения

Интерьер Le Coucou Méribel спроектирован с приоритетом на комфорт и восстановление гостей после активного катания. Пространства лобби, лаунжей, спа и номеров создают уютную и расслабляющую атмосферу: используются натуральные материалы, мягкая мебель, продуманное освещение и панорамные окна для визуального контакта с природой

Каждая зона организована так, чтобы гости могли легко переключиться с активного дня на склоне на отдых и восстановление, будь то в спа, у камина или в уютном уголке для общения и релаксации
Интерьеры горнолыжных комплексов должны сочетать функциональность для активного спорта — хранение и подготовку снаряжения, удобную навигацию и доступ к склонам с зонами для отдыха и восстановления, где гости могут расслабиться после катания. Такой подход обеспечивает комфортное и полноценное пребывание, позволяя совмещать спортивную активность с отдыхом в эстетически приятной и удобной среде
Выводы
Актуальные потребности жителей и гостей Ульяновска
1. Спортивные и рекреационные потребности
Необходимость наличия доступных спортивных объектов, в первую очередь для зимних видов спорта: горнолыжных спусков, учебных трасс для детей и подростков.
Создание условий для регулярных тренировок и проведения соревнований, особенно для молодёжи и школьников.
Возможность активного отдыха на свежем воздухе, прогулок, катания на лыжах и санках, а также велосипедных и беговых трасс в летний период
2. Доступность и транспортная связь
Объекты легкодоступен как для жителей центральных районов, так и для жителей отдалённых частей города.
В наличии удобная транспортная инфраструктура: автобусные и трамвайные маршруты, возможность подъезда на личном транспорте.
Близость к образовательным учреждениям (гимназия им. Ленина, университет) повышает социальную значимость комплекса
3. Комфорт и современные стандарты
Высокий уровень комфорта и безопасности для посетителей всех возрастных категорий.
Современные инженерные решения: устойчивость к климатическим условиям, удобные подъёмники, оборудованные зоны отдыха, кафе, смотровые площадки.
Интеграция с природным ландшафтом, включая берег Волги и прилегающие зелёные зоны, для создания приятной и экологичной среды
4. Социальная и образовательная функция
Привлечение молодежи к здоровому образу жизни и спортивным традициям города.
Создание условий для проведения массовых мероприятий, соревнований, работы детских лагерей и тренировок.
Создание площадки для объединения жителей разных возрастов и с разными интересами, поддержка общественной активности
Техническое задание
Основная цель реновации — создать в центре города современный спортивный комплекс, который сочетает горнолыжную инфраструктуру с культурными особенностями Ульяновска, удовлетворяет потребности жителей в активном отдыхе и спортивной рекреации и функционирует круглый год как точка притяжения для спорта, досуга и общественной жизни
Необходимо обеспечить современную и безопасную инфраструктуру прилежащей территории, позволяющую использовать комплекс круглый год для спортивной рекреации и отдыха
Прилежащая территория спортивного комплекса
Обновление подъемников
- Демонтаж старых подъемников и установка современных подъемников. - Подъемники должны соответствовать современным требованиям безопасности и пропускной способности для различных категорий пользователей. - Обеспечить интеграцию системы с существующей трассой и зоной спуска
Укрепление склона
- Провести инженерно-геологические работы для оценки устойчивости склонов. - Выполнить укрепление грунта и укрепительных конструкций для безопасного катания и предотвращения эрозии. - Создать безопасные зоны с ограждениями и навигационными указателями
Ландшафтный дизайн
- Разработать план ландшафтного дизайна, обеспечивающий использование территории круглый год. - Летом: трассы для велопрогулок, пешеходные маршруты, зоны отдыха на открытом воздухе. - Зимой: подготовка склона под горнолыжные трассы с разметкой и контролем рельефа
Зоны для разминок и подготовки к активности
- Создание открытых площадок для разминки перед катанием и спортивными тренировками. - Оснащение зон тренажерами или уличными спортивными элементами по необходимости. - Планирование безопасных маршрутов для доступа к зонам разминки и к подъемникам
Пункты отдыха и малые архитектурные формы (МАФы)
- Строительство небольших павильонов/МАФов с кафе, снеками и местами для сидения. - Обеспечение функциональности: теплые павильоны зимой, открытые террасы летом. - Удобная логистика и доступность со всех ключевых точек территории
Интерьер горнолыжного комплекса
Зона хранения и аренды инвентаря
- Организация эргономичных стеллажей, шкафов и полок для хранения лыж, сноубордов, шлемов и другого оборудования. - Интеграция системы выдачи и возврата инвентаря с учетом потока посетителей. - Удобные проходы для безопасного перемещения гостей с инвентарем
Зона отдыха
- Комфортные диваны, кресла и мягкая мебель - Панорамные окна для визуальной связи с трассой
Раздевалки и душевые
- Просторные и безопасные раздевалки с индивидуальными шкафчиками. - Душевые с современным сантехническим оборудованием и вентиляцией
Места для групповых тренировок
- Зал с возможностью проведения разминки, растяжки и силовых упражнений. (Площадка оснащена спортивным оборудованием и зеркалами. Безопасное покрытие пола и достаточная освещенность)
Административные зоны и кабинеты
- Рабочие места для персонала, офисные помещения для руководства комплекса. (Планировка, обеспечивающая контроль за потоками гостей и безопасность. Организация системы связи и наблюдения за объектом)
Сувенирный магазин
- Пространство для продажи спортивной экипировки, аксессуаров и сувениров. (Удобная навигация, видимость товаров и доступность для посетителей. Возможность сезонного изменения экспозиции)
Кафе и точки питания
- Организация мест для быстрого перекуса и полноценного питания. (Мебель и оборудование, удобные для гостей всех возрастов)
Место для презентаций и официальных мероприятий
- Зал с возможностью трансформации под конференции, лекции и культурные мероприятия. (Акустическая и световая системы, возможность подключения мультимедиа. Удобная рассадка для участников, безопасные проходы)
Дополнительные зоны
- Медицинский пункт и зона первой помощи. - Комната для персонала и отдыха сотрудников
Комплекс «Ленинские горки» должен сочетать функциональность и комфорт: территория оборудуется для катания и летних активностей, склоны укрепляются, подъемники заменяются на современные, создаются зоны отдыха, кафе и малые архитектурные формы. Внутри здания организуются раздевалки, душевые, аренда инвентаря, зоны для разминок и тренировок, административные и коммерческие помещения, а также пространства для презентаций и мероприятий — всё это должно работать как единое безопасное и удобное для посетителей пространство, актуальное круглый год
«Ленинские горки» с канатной дорогой на Венце выставили на продажу // Ульяновск URL: https://ulpressa.ru/2023/11/01/leninskie-gorki-s-kanatnoj-dorogoj-na-vence-vystavili-na-prodazhu/ (дата обращения: 20.11.2025).
Топографическая карта Россия // topographic-map.com URL: https://ru-ru.topographic-map.com/map-pk6jmt/Россия/? center=54.31032%2C48.39837& zoom=16 (дата обращения: 22.11.2025).
Почвенная карта Россия // Это место URL: http://www.etomesto.ru/map-atlas_pochvennaya-karta/?y=54.328249&x=48.370311 (дата обращения: 24.11.2025).
Климат. Ульяновская область // СОТИ URL: https://www.nbcrs.org/regions/ulyanovskaya-oblast/klimat (дата обращения: 24.11.2025).
История города Ульяновск // Taler-travel.ru URL: https://taler-travel.ru/places/istoriya-goroda-ulyanovsk (дата обращения: 24.11.2025).
Симбирск-Ульяновск. Труднодоступный порт пяти морей // Годы и люди URL: https://годы-и-люди.рф/entry/8965 (дата обращения: 23.11.2025).
Спутниковая карта Ульяновска 1972 год // ЭТО МЕСТО URL: http://www.etomesto.ru/map-ulyanovsk_sputnik-1972/ (дата обращения: 22.11.2025).
Депутаты встали на защиту «Ленинских Горок» в Ульяновске // Моя газета URL: https://mygazeta.com/новости/депутаты-встали-на-защиту.html (дата обращения: 24.11.2025).
Исследование оползней // ТрестГео URL: https://msk.trestgeo.ru/issledovanie-opolznej/ (дата обращения: 24.11.2025).
Архитекторы собрались в Ульяновске ради культурного наследия // 73онлайн URL: https://73online.ru/r/arhitektory_sobralis_v_ulyanovske_radi_kulturnogo_naslediya-105944 (дата обращения: 24.11.2025).
Hammarbybacken // STOCKHOLM Hammarbybacken URL: https://www.skistar.com/en/hammarbybacken/summer-at-hammarbybacken/climbing-tower/ (дата обращения: 08.12.2025).
Смоделированные исторические данные о климате и погоде для Ульяновск // Meteoblue URL: https://www.meteoblue.com/ru/погода/historyclimate/climatemodelled/Ульяновск_Россия_479123 (дата обращения: 08.12.2025).
Ленинские горки // Ресторанный комплекс Ленинские горки URL: https://leninskie-gorki.ru/ (дата обращения: 08.12.2025).
Кому мешают «Ленинские горки»? // 73онлайн URL: https://73online.ru/readnews/8695 (дата обращения: 08.12.2025).
«Ленинские горки» с канатной дорогой на Венце выставили на продажу // Ульяновск URL: https://ulpressa.ru/2023/11/01/leninskie-gorki-s-kanatnoj-dorogoj-na-vence-vystavili-na-prodazhu/ (дата обращения: 23.11.2025).
Топографическая карта Россия // topographic-map.com URL: https://ru-ru.topographic-map.com/map-pk6jmt/Россия/? center=54.31032%2C48.39837& zoom=16 (дата обращения: 22.11.2025).
Почвенная карта Россия // Это место URL: http://www.etomesto.ru/map-atlas_pochvennaya-karta/?y=54.328249&x=48.370311 (дата обращения: 24.11.2025).
История города Ульяновск // Taler-travel.ru URL: https://taler-travel.ru/places/istoriya-goroda-ulyanovsk (дата обращения: 24.11.2025).
Идея для путешествия в зимние праздники — город Ульяновск // Владимирский край URL: https://photobook33.ru/rossiya/ideya-dlya-puteshestviya-v-zimnie-prazdniki-gorod-ulyanovsk.html (дата обращения: 24.11.2025).
10 августа 2017 | Наталья Михайлова Brandergofer: 59 лет назад открылось автомобильное движение на Императорском мосту. Фото // УЛПРЕССА URL: https://web.archive.org/web/20211215082757/https://ulpressa.ru/2017/08/10/brandergofer-59-let-nazad-otkryilos-avtomobilnoe-dvizhenie-na-imperatorskom-mostu-foto/ (дата обращения: 24.11.2025).
Спутниковая карта Ульяновска 1972 год // ЭТО МЕСТО URL: http://www.etomesto.ru/map-ulyanovsk_sputnik-1972/ (дата обращения: 22.11.2025).
Депутаты встали на защиту «Ленинских Горок» в Ульяновске // Моя газета URL: https://mygazeta.com/новости/депутаты-встали-на-защиту.html (дата обращения: 24.11.2025).
Исследование оползней // ТрестГео URL: https://msk.trestgeo.ru/issledovanie-opolznej/ (дата обращения: 24.11.2025).
Свайный забивной фундамент // Фундаменты63 URL: https://fundamenty63.ru/svayniy (дата обращения: 24.11.2025).
Гостиница «Венец» и Ленинский мемориал // Retro View of Mankind’s Habitat URL: https://pastvu.com/p/1534137 (дата обращения: 24.11.2025).
Прогулка по набережной Ульяновска // Дзен URL: https://dzen.ru/a/XoyQLxfbozcZFKmE (дата обращения: 24.11.2025).
Архитекторы собрались в Ульяновске ради культурного наследия // 73онлайн URL: https://73online.ru/r/arhitektory_sobralis_v_ulyanovske_radi_kulturnogo_naslediya-105944 (дата обращения: 24.11.2025).
Горнолыжный комплекс открылся в Ульяновске // УЛправда URL: https://ulpravda.ru/rubrics/soc/gornolyzhnyi-kompleks-otkrylsia-v-ulianovske (дата обращения: 24.11.2025).
Le Coucou Hotel, Méribel — Belvedere // SeeMeribel URL: https://www.seemeribel.com/hotels/le-coucou-hotel-meribel-belvedere-735201 (дата обращения: 08.12.2025).
Hammarbybacken // Tripadvisor URL: https://www.tripadvisor.com/Attraction_Review-g189852-d7221774-Reviews-Hammarbybacken-Stockholm.html (дата обращения: 08.12.2025).
Hammarbybacken // STOCKHOLM Hammarbybacken URL: https://www.skistar.com/en/hammarbybacken/summer-at-hammarbybacken/climbing-tower/ (дата обращения: 08.12.2025).
Смоделированные исторические данные о климате и погоде для Ульяновск // Meteoblue URL: https://www.meteoblue.com/ru/погода/historyclimate/climatemodelled/Ульяновск_Россия_479123 (дата обращения: 08.12.2025).
Snazzy Maps // Snazzy Maps URL: https://snazzymaps.com/style/72543/assassins-creed-iv (дата обращения: 08.12.2025).
Ленинские горки // Ресторанный комплекс Ленинские горки URL: https://leninskie-gorki.ru/ (дата обращения: 08.12.2025).
Copperhill Mountain Lodge 5* // ЯндексПутешествия URL: https://travel.yandex.ru/hotels/sweden/copperhill-mountain-lodge/ (дата обращения: 08.12.2025).