
Аналитика
Адрес: Россия, Московская обл., г. Мытищи, ул. Силикатная
Предположительный район застройки находится на улице стрелковый переулок. В этом районе преобладает жилая площадь, так же будет застроен новый ЖК. Точки притяжения — Фитнес залы, кафе, зоны отдыха, ТЦ Кит в 15 метрах. Добраться до школы не составит труда, остановки в минутной доступности пешком. Стоимость жилья от 2 до 17 млн. руб., стоимость съема от 40 до 75 тыс. руб. Многоэтажные дома нового ЖК увеличит количество людей в этом районе, что создаст дефицит в образовательных учреждениях.
В результате опроса школьников от 5 до 9 классов (от 11 до 16 лет примерно) выявлено, что школьники проявляют ярко выраженные предпочтения, которые учитывают как функциональные, так и эстетические аспекты. Основные моменты, которые удалось выделить:
1. Светлые и однотонные цвета; 2. Мягкая и лаконичная мебель; 3. Современное оснащение; 4. Места для хранения; 5. Просторные помещения.

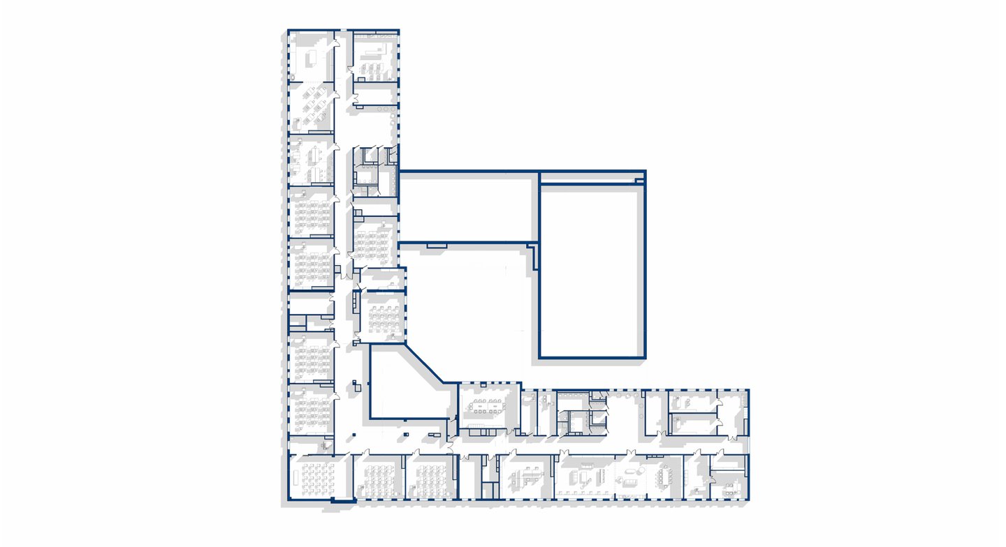
План зонирования
1 этаж
2 этаж
3 этаж
4 этаж
Планировочные решения
2 этаж
3 этаж
4 этаж
Холл
Амфитеатр
Коридор начальной школы
Класс начальной шĸолы
Реĸреация начальной шĸолы
Реĸреация средней / старшей шĸолы
Многофунĸциональный ĸласс
Специализированный класс — химия
Обеденный зал столовой
Графическое оформление
Паттерны (вариант № 1 и 2)
Типовые таблички на кабинеты
Вид на дверь с табличкой. Фрагмент интерьера
Вид на двери санузла средней / старшей школы. Фрагмент интерьера
Предложение по навигации