Original size 2163x3029

Музей Леденца

PROTECT STATUS: not protected

Концепция Дизайн-проекта

post

Музей Леденца в Сергиевом Посаде — это яркая и живая фабрика, где история и искусство создания леденцов оживают в цветных стеклах и интерактивных зонах. Здесь каждый посетитель может самостоятельно сварить карамель, создать уникальный дизайн упаковки. Для маленьких гостей — игровая зона с развлечениями. Два кафе, большой магазин, зоны для общения и обмена вдохновением!

big
Original size 2272x1280

Взрыв-схема музея

Визуализации

big
Original size 2970x2100

Входная группа

Original size 2970x2100

Лобби

Original size 2970x2100

Вестибюль

Original size 2970x2100

Холл

Original size 2970x2100

Зона мастер-классов по варке карамели

Original size 2970x2100

Магазин

Original size 2970x2100

Магазин

Original size 2970x2100

Магазин

Original size 2970x2100

Кафе

Original size 2970x2100

Экспозиция музея

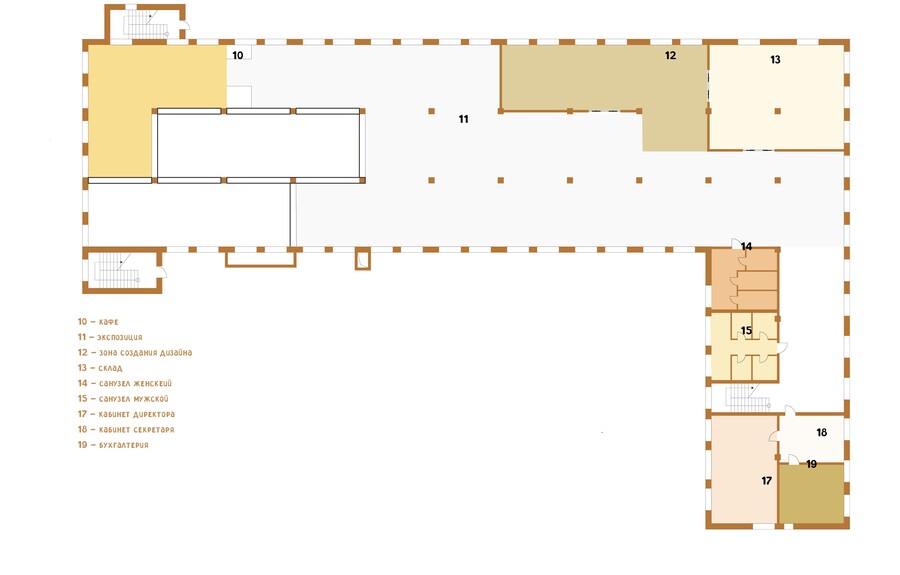
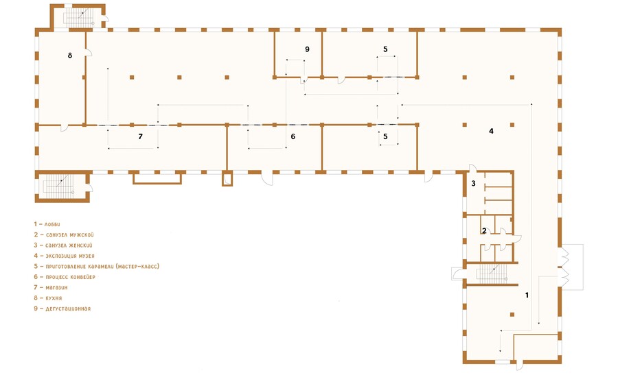
Планы функционального зонирования

Планы расстановки мебели на этажах музея

Original size 3391x2074

1-й этаж

Original size 3391x2059

2-й этаж

Планы передвижения посетителя музея